| |
Продукция - КОМПЛЕКТУЮЩИЕ
|
| |
 |
|
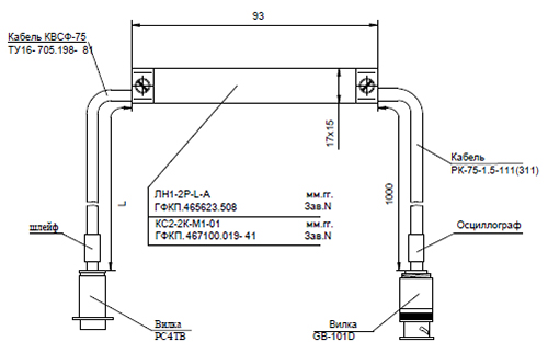
ЛН1-2Р
Лабораторные наборы кабелей

 
Предназначены для отладки систем на основе мультиплексных каналов.
ЛН-нерасширяемый набор, предназначенный для подключения нескольких абонентов (от 1 до 2) и одного осциллографа.
Варианты исполнения:
| Наименование |
Обозначение комплекта КД |
Тип соединителя абонента 1 |
Тип соединителя абонента 2 |
Длина L, м |
| ЛН1-2Р-1-А* |
ГФКП.465623.508-17 |
вилка РС4ТВ |
- |
1 |
| ЛН1-2Р-2-А* |
ГФКП.465623.508-18 |
вилка РС4ТВ |
- |
2 |
| ЛН1-2Р-3-А* |
ГФКП.465623.508-19 |
вилка РС4ТВ |
- |
3 |
| ЛН1-2Р-6-А* |
ГФКП.465623.508-20 |
вилка РС4ТВ |
- |
6 |
*где А - тип приемки: C (приемка ОТК) или M (приемка ВП МО РФ)
|
Основные технические характеристики:
- Распайка жил кабеля КВСФ-75: фаза А (+) - светлый, фаза Б (-) - темный
- Максимальный наружный диаметр кабеля - 4,2мм;
- Для герметизации в целях защиты от внешних воздействующих факторов, внутренняя полость коробки соединительной и соединители РС4ТВ герметизируются компаундом.
|
|
|